Home
(current)
Floorplan
Retail Floor Plan
Residential Floor Plan
Commercial Offices Floor Plan
Dental Floor Plan
FAQs
Gallery
Contact Us
Tenant Portal
Floorplan
Home
Floor plan
Retail Floor Plans
Retail Spaces
Storefronts located along a high-traffic street in the center of Chinatown
Retail Floorplan (G/F)
Retail Unit Features
Suitable for restaurants, markets, grocery stores, clinics, etc.
Recently restored building with lots of modern upgrades.
Separate utility meters.
Most units have bathrooms.
Sprinkler system installed - tenant may need to adjust the sprinkler heights.
Awning and signage frame space.
Roll-up gates installed for added security.
Historical building with lots of character.
Storefronts are located on one of the busiest streets in Oakland.
Internet, phone and cable ready. There is a conduit to the utility panel, wiring is required by the tenant.
ADA accessible.
Dual-paned 1-inch insulated glass storefronts.
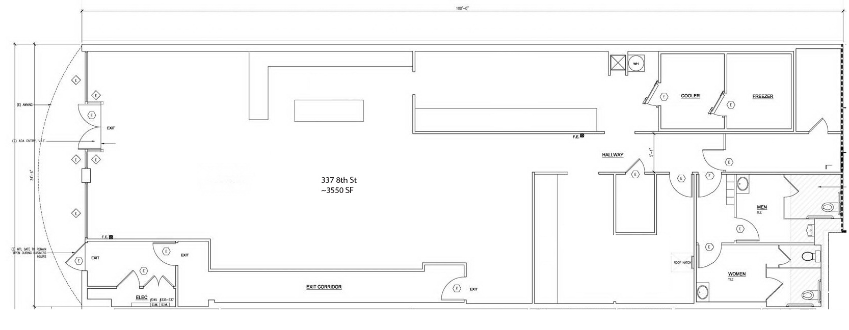
#337
3550 sq.ft.
Call for Details
#345
1182 sq.ft.
Call for Details
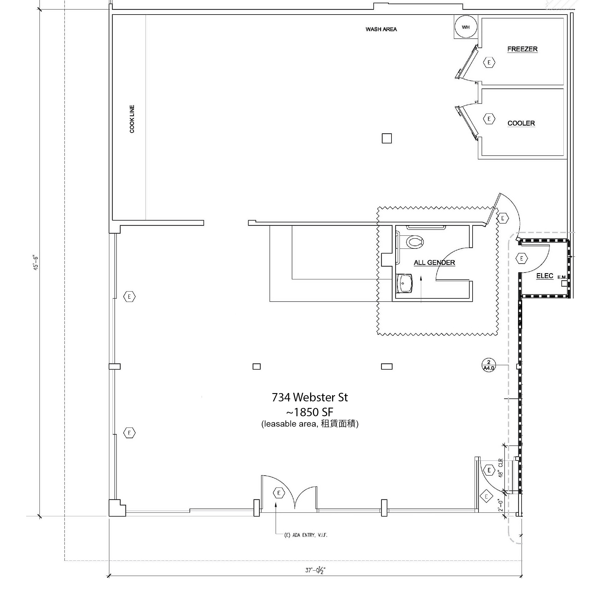
#734
1850 sq.ft.
Call for Details
#718
1834 sq.ft.
Call for Details
#728 (Variation 1)
750 sq.ft.
Call for Details
#728 (Variation 2)
819 sq.ft.
Call for Details
#724
1297 sq.ft.
Call for Details
#720
1322 sq.ft.
Call for Details